上海恒點傳動設備有限公司
加微信聯系 恒點減速機QQ2:51228482
[HTML] [XML]  産品展示産品展示-RSS  新聞中心新聞中心-RSS  技術支持技術支持-RSS
産品分類: 減速機蝸輪絲杆升降機轉向箱蝸輪蝸杆減速機齒輪減速機行星齒輪減速機擺線針輪減速機無級變速機大功率減速器
上海恒點傳動設備有限公司
資訊分類
和産品相關的技術文章
當前位置:網站首頁 > 技術支持 > 工業齒輪箱的冷卻方式

工業齒輪箱的冷卻方式

Tags: HB标準工業齒輪箱    發布時間: 2012-05-14
  工業齒輪箱的冷卻方式有好幾種,恒點減速機簡單爲您說說常用的幾種冷卻方式:
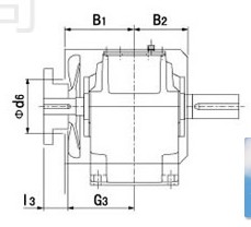
  第一種,使用冷卻風扇。 安裝時 ,在輸入軸端安裝一個冷卻風扇,對著齒輪箱的箱體吹,如下圖:
帶冷卻風扇的工業齒輪箱  
  這裏要說的一點,L3的長度有兩種,現在看到的這種是帶風扇的,長度長一些,另一種是不帶風扇的,如圖 :
  第二種,冷卻盤管。 這一種是在齒輪箱内,放冷卻盤管,一邊進水,一邊出水,通過流動的方式,使用齒輪箱内的潤滑油溫度降下來。
  第三種,冷卻風扇+冷卻盤管。這個容易理解,就是把上面兩者組合起來使用 。
  第四種,使用外部潤滑油冷卻裝置進行冷卻。 這種方式,适合用負載大,發熱多的設備。在齒輪箱運轉民時,使用油泵,将齒輪箱内部的油打出來進行冷卻,同時将常溫下的油加入齒輪箱,用潤滑油的方式來進行冷卻。

  以上四種方式,前兩者常用,客戶可在實際工況中選擇使用。具體情況,請來電咨詢。
上一篇 上一篇: 電機代号(符号)解釋說明
下一篇 下一篇: 單輸入軸絲杆升降機的讨論[原創]
相關新聞文章 > 查看更多
錐齒輪承載能力計算方法第 2 部分:齒面接觸疲勞(點蝕)強度計算齒面工作硬化系數ZW(GB/T10062.2-2003) 2025-05-12
12L14和45#鋼性能的區别 2025-04-02
公差與偏差的區别在哪? 2024-12-30
什麽是模鑄軸承鋼和連鑄軸承鋼 2024-11-08
軸承損壞後是否可以修複 2024-11-06
PWM和PAM的不同點是什麽? 2024-09-24
圓柱齒輪 檢驗實施規範 第3部分:齒輪坯、軸中心距和軸線平行度齒輪坯的精度(GB/Z18620.3-2002) 2024-08-28
圓柱齒輪、錐齒輪和準雙曲面齒輪膠合承載能力計算方法第2部分:積分溫度法影響因素(GB/Z6413.2-2003) 2024-06-06
齒根彎曲強度計算尺寸系數YX(GB/T10062.3-2003) 2024-04-25
諧波傳動減速器标志、包裝、運輸、貯存(GB/T14118-93) 2024-03-25
提高數控機床可靠性的方法2:採用技術成熟的模塊化部件 2024-01-23
減速機油封漏油的原因1-裝配原因 2021-04-08
返回頂部 關閉本頁】 【打印本頁
電 話:021-22815912  021-22816186  傳 真:021-32050712   郵箱:sales@021jsj.cn  減速機 絲杆升降機 轉向箱 蝸輪蝸杆減速機
Copyright©2009-2026上海恒點傳動設備有限公司 版權所有  地址:上海市金山區亭林鎮林寶路39号  郵編:200442  滬ICP備10206998号-2 
友情鏈接機械設備網 | 渦街流量計 | 輸送機 | 變頻控制櫃 | 破碎機 | 工業同城 | 手持終端 | 柴油發電機 | uv平闆打印機 | 風淋室 | QUV | 防火門 | 九愛圖紙 | 感應加熱設備 | 輸送帶廠家 | 噪聲治理 | 西門子plc | 拖鏈電纜 | AGV | 機械雜志 | 現代機械 | UWB高精度定位 |